Goldammer Wohnen
  • Home
  • Ladengeschäfte
  • Büros
  • Werkstatt/Lager
  • Wohnen
    • Unmöblierte Appartments
    • Wohnungen
      • Unmöblierte Wohnungen
      • Möblierte Wohnungen
  • Wallboxen
    • Ladestationen
    • Elektroauto Ladestation in Wolfsburg, Schlosserstrasse 6a
    • Elektroauto Ladestation in Wolfsburg, Heinrich-Nordhoff-Str. 59
  • Kontaktieren Sie uns
+49(0)536129950
Submit
Goldammer Wohnen
  • Home
  • Ladengeschäfte
  • Büros
  • Werkstatt/Lager
  • Wohnen
    • Unmöblierte Appartments
    • Wohnungen
      • Unmöblierte Wohnungen
      • Möblierte Wohnungen
  • Wallboxen
    • Ladestationen
    • Elektroauto Ladestation in Wolfsburg, Schlosserstrasse 6a
    • Elektroauto Ladestation in Wolfsburg, Heinrich-Nordhoff-Str. 59
  • Kontaktieren Sie uns
+49(0)536129950
Submit

Ladenfläche Heinrich-Nordhoff-Str. 59 EG links 66,85 m²

Heinrich-Nordhoff Strasse 59, Wolfsburg, Deutschland

Zu vermieten

1,671€

  • HN59_EG_Laden_links_Uebersicht-Kopie-scaled
  • HN59_EG_Laden_links_aussen_7-Kopie
  • HN59_EG_Laden_links_aussen_6-Kopie
  • HN_59_EG_Grundriss_Ladengeschaefte_links-1
  • Heinrich-Nordhoff_Strasse_59_Vorderansicht_01_05_2022_3
  • HN59_Front_1_22_03_2026
  • Heinrich-Nordhoff_Straße_59_Hinteransicht_2
  • HN59_EG_Laden_links_aussen_WC-Kopie
  • Laden_EG_Links_Raum1_4
  • Laden_EG_Links_Raum1_3
  • Laden_EG_Links_Raum1_2
  • Laden_EG_Links_Raum1_1
  • Laden_EG_Links_Kueche_1_2
  • Laden_EG_Links_Kueche_1_1-scaled
  • Laden_EG_Links_Durchgang
  • Laden_EG_Links_Raum2_1
  • Laden_EG_Links_Raum2_2
  • Laden_EG_Links_Raum2_3
  • HN59_EG_Laden_links_aussen_5-Kopie
  • Laden_EG_Links_Raum3_1
  • HN59_EG_Laden_links_aussen_2-Kopie
  • Laden_EG_Links_Raum3_2
  • HN59_EG_Laden_links_aussen_3-Kopie
  • Laden_EG_Links_Raumm2_4
  • HN59_EG_Laden_links_aussen_4-Kopie

Immobilien-ID:

 HN59_EG_links

Highlight
Bereich
66,85 m²

Beschreibung

Daten und Konditionen:

Nutzfläche66,84 m²
Anzahl Räume5
BodenbelagFeinstein schwarz
EtageEG links aussen
Kaltmiete1671€ (netto) 1 m² / 25,00€
Mtl. Nebenkosten120€
Mehrwertsteuerzuzüglich
Kaution4 Monatsmieten + NK + MwSt
Baujahr1960
Zustand:renoviert, saniert
EnergieeffizienzKlasse A
Mindestvertragslaufzeit3 Jahre
Frei absofort

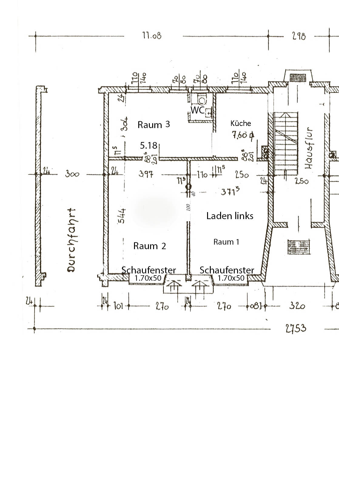
Raumaufteilung:

Nutzfläche gesamt66,85 m²
Anzahl Räume5
Raum 121,60 m²
Raum 220,60 m²
Raum 313,85 m²
Küche7,6 m²
WC1,60 m²
WC im Keller1,60 m²

Wir haben zwei Ladengeschäfte die durch eine Verbindungstür zugänglich sind.
Sie können Sie einzeln, wie auch zusammen anmieten.

Ausstattung:

2x 1,70m breite Schaufensterfront
Die Schaufensterfront hat eine 42db Schallschutzverglasung
Waschbecken mit Untertischgerät und WC und Spüle
Leuchtstoffdeckenlampen in Raum 1, 2, 3 und Küche
Schaufensterbeleuchtung mit Zeitschaltuhr
Mitarbeiter WC im Keller
Zustand saniert und renoviert.
Wallbox 22 kW direkt auf ihrem Parkplatz, für Mieter des Hauses gibt es Sonderkonditionen, derzeit 35 Cent pro kWh plus Steuer .
Netzwerkverkabelung mit Patchfeld.
Hausflure und Außenbereich ist Videoüberwacht sowie Zufahrten

Lage und Umfeld dieser Immobilie

Das Objekt befindet sich direkt gegenüber vom Haupt und Busbahnhof in Wolfsburg.
Fußläufig erreichen Sie den Bahnhof und Cinemaxx in drei Minuten, zur Fußgängerzone gehen Sie 5 Minuten sowie zum Designeroutlets Wolfsburg.
Sie haben eine direkt Sicht zum Volkswagenwerk und Autostadt.
Die Heinrich-Nordhoff-Straße ist eine Hauptverkehrsader die direkt durch die Stadt für und zählt damit zu den meist frequentierten Straßen Wolfsburgs.

Features

  • Heizung

Property Video

  • Heinrich-Nordhoff-Str. 59 EG links

Similar Properties

Highlight
Immobilie ansehen

Büro Heinrich-Nordhoff-Str. 59, 74,75 qm EG Nebengebäude

Daten und Konditionen: Nutzfläche 74,75 m² Anzahl Räume 4 Bodenbelag…

Badezimmer
1
Bereich
74,75 m²
Zu vermieten

897€

Highlight
Immobilie ansehen

Ladenfläche Heinrich-Nordhoff-Str. 59 EG links 29,79 m²

Wir haben ein Ladengeschäfte 29,79 direkt gegenüber dem Hauptbahnhof. Daten…

Bereich
29,79 m²
Zu vermieten

744€

Aktuelle Angebote

Featured
Immobilie ansehen

Ladenfläche Heinrich-Nordhoff-Str. 59 EG links aussen 37,05 m²

Bereich
37,05 m²
Zu vermieten

925€

Featured
Immobilie ansehen

Ladenfläche Heinrich-Nordhoff-Str. 59 EG links 29,79 m²

Wir haben ein Ladengeschäfte 29,79 direkt gegenüber dem Hauptbahnhof. Daten…

Bereich
29,79 m²
Zu vermieten

744€

Goldammer Wohnen

Rechtliches

  • Datenschutzerklärung
  • Impressum

© Goldammer Wohnen 2026

|
Ladenfläche Heinrich-Nordhoff-Str. 59 EG links 29,79 m² Ladenfläche Heinrich-Nordhoff-Str. 59 EG links aussen 37,05 m²
Goldammer Wohnen
  • Login
Forget Password?

OTP Verification

Please enter the 6-digit OTP sent to your email.

Time remaining: 05:00

Diese Website benutzt Cookies. Wenn du die Website weiter nutzt, gehen wir von deinem Einverständnis aus.